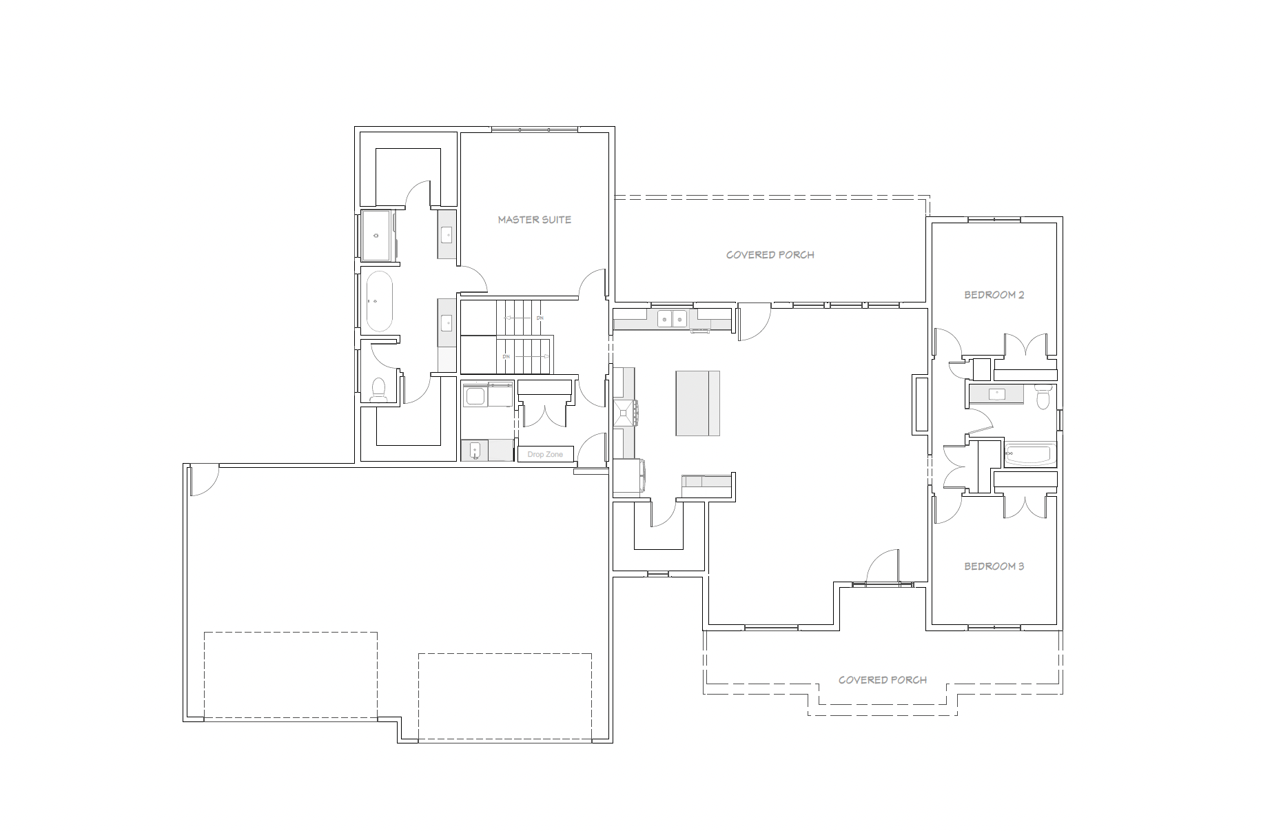
The BrooksideStarting at 2,074 Square Feet | 3 Bedrooms | 2 Baths | 3 or 4-Car Garage (can be front load garage) | Full basement with optional finishLink to 3D Walkthrough: https://360.shutter-vision.com/SunsetHomes/TheBrookside